15-19 S Charles St - Med-Spa, 1 E Redwood- MediSpa, Baltimore, MD 21202
15-19 S Charles St - Med-Spa, 1 E Redwood- MediSpa, Baltimore, MD 21202
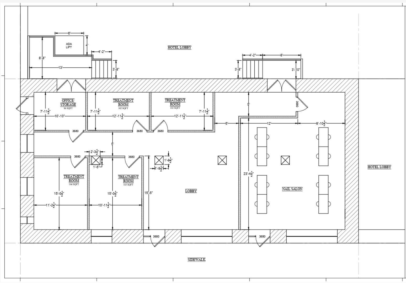
Commercial Retail Space for Lease
Ideal for a Medical Spa, Wellness Clinic, Cosmetic Practice, or Boutique Med-Aesthetics Studio
Modern, professional build-out options available – ideal for treatment rooms, consultation areas, and retail sales
Existing plumbing and electrical infrastructure to support med spa equipment
Flexible floor plan for private treatment rooms, reception area, staff lounge, and storage
Excellent location with high foot traffic, surrounded by complementary businesses (retails, restaurants, and cafes)
Modern, professional build-out options available – ideal for treatment rooms, consultation areas, and retail sales
Existing plumbing and electrical infrastructure to support med spa equipment
Flexible floor plan for private treatment rooms, reception area, staff lounge, and storage
Excellent location with high foot traffic, surrounded by complementary businesses (retails, restaurants, and cafes)
Contact us:









